
Navštíveno 2873x

Mam vnejsi a vnitrni jednotku, potrebuju natahat trubky (cca 15m), elektriku k vnitrni jednotce, odvod kondenzatu atd...
realizace zhruba za mesic, to uz bude leseni a bude se to delat pohodlne. Pak se udela fasada a po fasade se to napusti a zprovozni.
Nedela nekdo klimatizace a nechce si privydelat? Praha vychod.

21.08.2012, 18:23 |
TROY mám člověka,ale pardubický kraj
Poptej se prosim te, radsi mu dam peto na benzin, nez abych preplacel firmu z vedlejsi vesnice...

21.08.2012, 21:29 |
dolph | Upraveno: 2012-08-21 21:30:32
zkus poptat Pragoklima anebo plzeňské KMB Progress
edit: kdyby jsi byl ostravský tak znám hoodně šikovných kluků
v pragoklima mam kamarada, muzu se zeptat, jestli by o to nemel zajem - spis jako meloooch :)
Mnoo, tak uuuz :o) Jedna firma rekne 20 bez dane, druha 15 s dani, pak se kouknu na par shopu a zjistim, ze matros je asi tak za bura, prace na 5 hodin max, asi zacnu delat klimatizace...
Tome, poptej se prosim, jako melouch by to bylo gut pro obe strany :o)
co si pamatuju, kdyz to delali me, tak byl metr za 300, elektrika se taha jenom k vnejsi - 16A jistic. a spojuje se vnejsi s vnitrni nejakym 5xneco kablikem... ;) Poptam se, jestli by meli zajem...
Presne tak.
+ dva drzaky na zed a kilo chladiva prej. Elektriku mam vyvedenou na fasade k vnejsi jednotce a k te vnitrni je nakej 5ti zilovej kablik. Jo a odvod kondenzatu.
Metr dvojtrubky izolovany jsem nasel za 200/metr

22.08.2012, 08:38 |
dolph Napis mi do mailu co mas za jednotku. Poslu ti nabidku na potrubi, hadici na kondenzat, konzole a vlastne vsechno co potrebujes k montazi. Mam vse skladem v Ostrave

22.08.2012, 10:19 |
dolph máš to zpět

22.08.2012, 12:25 |
TROY tak odpadáme - kamarád je na slovensku
tapíku, ja dělam dealera klimatizaci LG už nějakou dobu, klidne cinkni, v praze mame pobočku a je možné domluvit nejakou spolehlivou firmu která ti to namontuje za dobry penize. Zase nehledej to nejlevnejsi reseni at pak neresis servis za par tydnu ;) A věr mi ze klimy bys montovat nechtel, respektive montovat ano ale nakup si vse co na tu montáž potrebujes a pak zjistis proc jsou za montaze takovy penize kdyz jak rikas vsechno stoji skoro hubičku :)
mišáku, nic mu nenabízej :) na ostravské cypy tady nikdo není zvedavej :) Objedná u mě, pošleš mi to na pobočku do Brna a já už si to vyřídím s pražákama :-)
Nooo tak uz vyrizuj :o)
LG Art Cool C12AHR
C12AHU (venkovní jednotka)
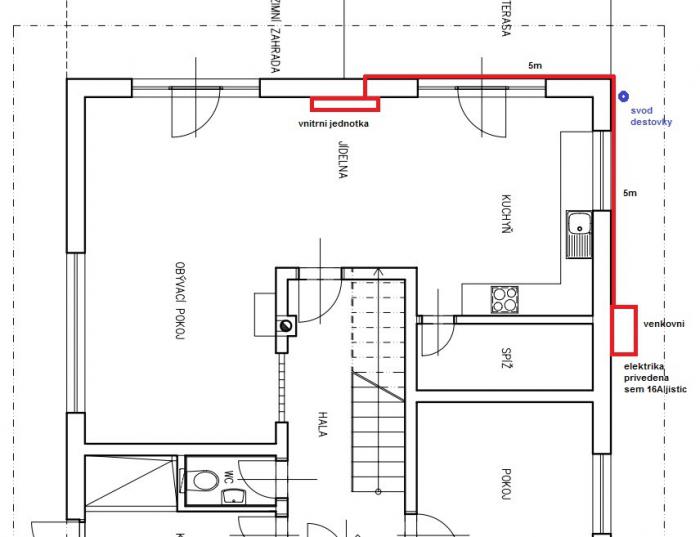
tech trubek bude tak 12m, odvod kondenzatu bud kolmo dolu pod zateplovakem, ze bych to vyved pod terasu na nejakej odkapovej plech, tam by se to v horku odparovalo. Nebo tech cca 5m a muze se napojit do ryny.
Viz obrazek.
el. revizi mam na celej barak, takze na samotnou klimu sere bilej tesak.
Takze, natahat trubky, elektriku a odpad, to vse nejak prilepit, pridelat na omitku, pres to prijde zateplovak, takze neni co resit. Jo a bude tam leseni, takze prace v pohode bych rek.

775 385 665 cinkni ty me prosim, jsem v UK, prichozi hovor me stoji malicko

22.08.2012, 21:36 |
dolph Hanzi neser :-)
domluv to s tappem me posli co chce a ja mu to odeslu :-) stejne nemas nic skladem :-)

23.08.2012, 08:41 |
Cenda dolph> jen tak ze zvědavosti, kde v Ostravě děláš? Schiessl?
Mam tu jeste jeden problemek, poveseni venkovni jednotky po omitkach. Mam stavbu z durisolu, skladba zdi na obrazku. Muzu zakotvit do panelu nejaky brutal pevnostni zavitovy tyce M16 a nechat couhat a po omitkach by se na ne pridelal ram s drzakem ty venkovni jednotky. Co myslite, bude to OK? 4-6 tyci by to mohlo unest ne?
Nebo radsi obnazit az na panel a udelat nejakej pomocnej prostorovej ram (kvadr)


23.08.2012, 11:53 |
dolph Cenda:Q-ELEKTRIK

24.08.2012, 09:19 |
Dudelina | Upraveno: 2012-08-24 09:23:12
Pokud ještě nemáš zateplovák, tak si nech svařit dvě konzole.
Ty tče to udrží, ale vždycky se prohnout a bude to dělat bordel - pružit.
Edit: Pokud bys dával rám na ty tyče, tak to by mohlo vyjít.
Nebo:
[ Link ]
Tak je pravda, ze i kdybych dal M20 zavitovky, 32cm bude jen delak tyci a dalsich 35 budou drzaky, tak to na 70cm bude pruzit porad. Takze asi nejakej ram...
[ Link ] ale na takhle silné zateplení blbý ...