
Navštíveno 1106x


16.01.2012, 09:50 |
Tomas Chcel by som Vas poziadat o radu, neviete niekto ako dostat plany rodinneho domu (stare plany robene za totaca) do Autocadu? Robim s nim denne, ale so strojarskou verziou, co sa tyka stavebnictva nula bodov a strasne sa mi to nechce prekreslovat, je toho vela.
Ideme s priatelkou rekonstruovat starsi dom a potrebujem to na stavebne konanie.
Dakujem za kazdu radu :-))

16.01.2012, 10:50 |
DaveX No máš ty plány na papíře? :)
prekreslit, samosebou ;-) na skole jsem si takhle brigadnicil, prekraslovali sme vykresy do cadu, baraky, strojni soucasti, vsechno mozny, kde ty doby jsou, dneska bych v cadu neudelal ani rovnou caru :-(

16.01.2012, 10:55 |
DaveX Ono jedna možnost je. Pokud ty výkresy máš v PDF, tak to jde hodit do *.dwg, nebo *.dxf. Těch programů je celá řada, co to umí. Pokud to máš na papíru, tak zkusit nascanovat, hodit do *.pdf a pak převést. Nicméně to stejně nebude ono a úpravám se určitě nevyhneš.
Překreslení tě asi nemine, dá se to trochu ulehčit oskenováním původních plánů a vložením do AutoCADu, kde to potom víceméně obtáhneš. Pozor ale .... ne vždy se projektant trefil a ne vždy kóty souhlasí s půdorysem

16.01.2012, 17:48 |
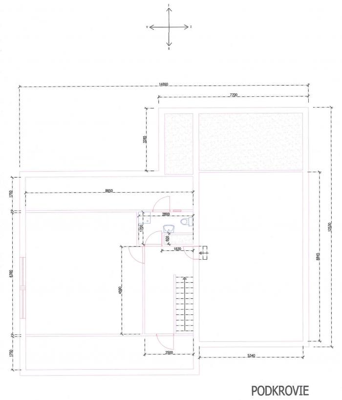
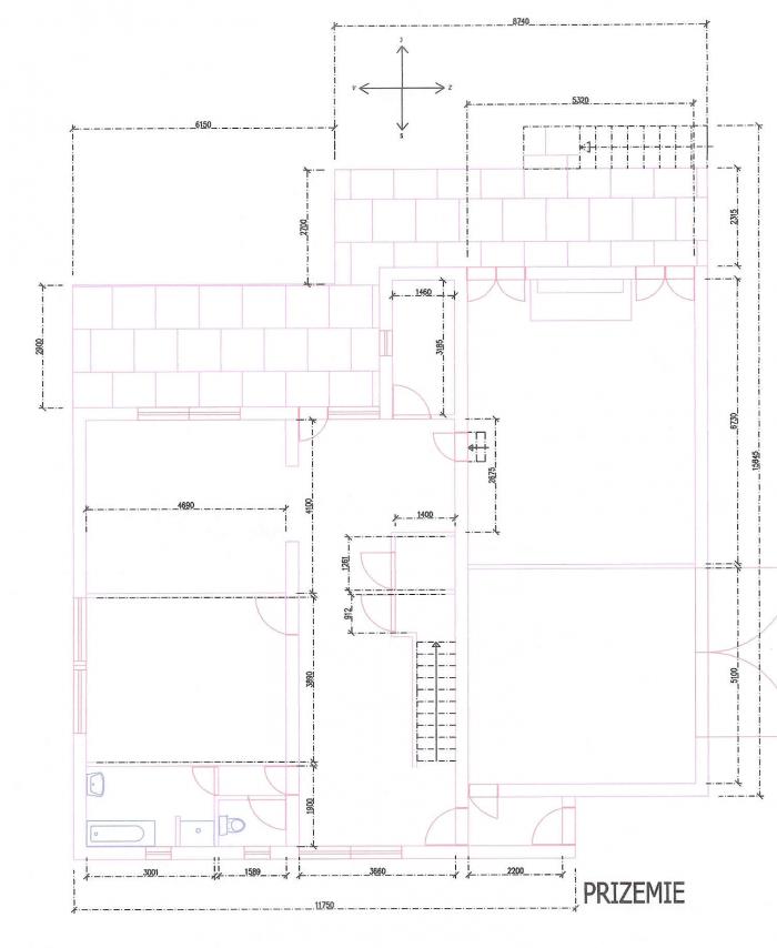
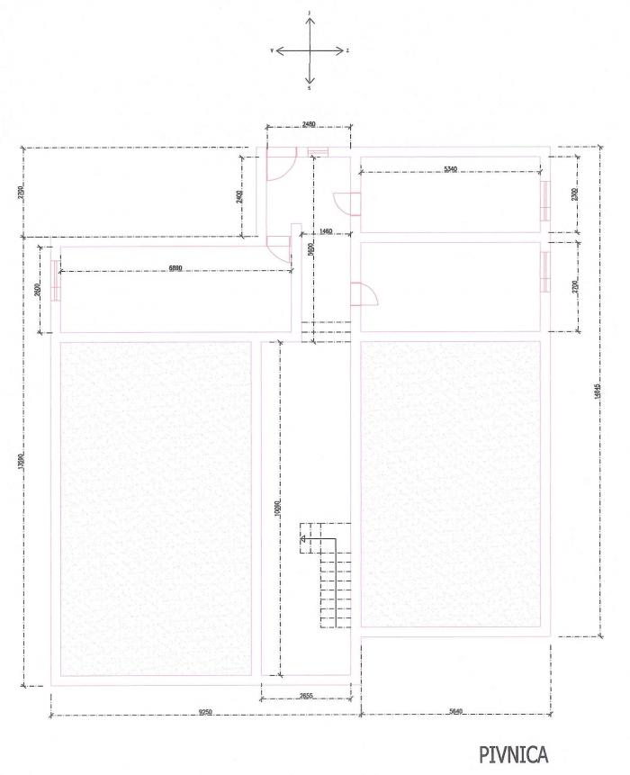
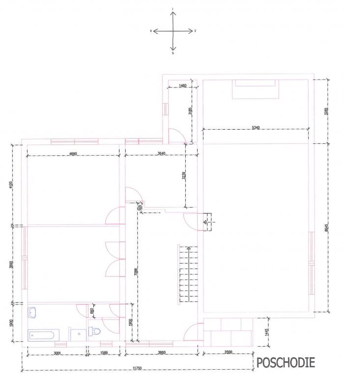
Tomas Dakujem chalani, prekleslenie ma asi nemminie, dal som si dve pivka a polmali na tom pracujem :-))

16.01.2012, 17:49 |
Tomas

16.01.2012, 17:49 |
Tomas

16.01.2012, 17:50 |
Tomas

16.01.2012, 17:50 |
Tomas