
Navštíveno 15129x


19.12.2011, 20:10 |
Komba Čau,jelikož jsem měl z matiky,která mi moc nešla 3 a hůře,takže bych vás moc poprosil o výpočet plochy pokoje,abych věděl kolik metrů čtverečných koupit koberec :)
A ještě dotaz k tomu.Vadí když se nový koberec dá přes starý?Jelikož nevíme co sním a vyhazovat ho ještě nechcem.Dík

19.12.2011, 20:12 |
Komba edit: aha,obázku se nechce,tak chvilku vydržte.

19.12.2011, 20:13 |
petrb vynasob sirku x delku pokoje ( 3x5 metru.. 15 m2) plus pokud mas nake vyklenky a podobne tak udelas pomyslnou caru a dopocitas to k tomu no, jednoduchje.

19.12.2011, 20:14 |
petrb nebo posli na e-mail
Obsah obdélníku: S=a*b
Pokud to je složitější tvar (třeba do L) tak si rozlož na jednodušší tvary ;)
Jinak strýček gogol jistě pomůže.
zde taková pomůcka na "všechno a nic"
[ Link ]

19.12.2011, 20:18 |
Komba

19.12.2011, 20:22 |
nome proboha co v té škole dneska učí ..
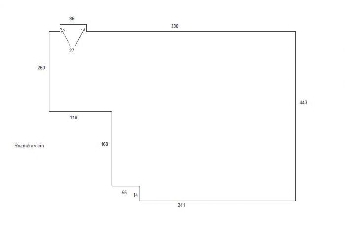
443x330 - [(55x14)+(119x182)] + (86x27)
Hele, stejně musíš koupit koberec tak, aby ti dal tu nejdelší stranu ku nejdelší další straně. Velmi nedoporučuju koupit koberec a do místnosti jej "skládat" z milionu kousků - tedy - řezat každej obdelník zvlášť.
znázorněno i pomocné rozložení plochy.


19.12.2011, 20:26 |
Pekys no, řeknu to asi takhle, jelikož se koberce prodávají na metry nějaký šířky, tak budeš muset koupit šíři 330, nebo 350 (nevim jaký se dělaj), a délku 470cm, lépe 5m a a v krajích doříznout, případně si nechat něco na sokl.
takže 350x500cm, a ten výklenek si budeš muset vyříznout.
jako Lucni.konik, koupíš 4,6 metru pětky koberce a nemáš co řešit, to ti po položení v jednom kuse vyjde i na kobercové lišty, tam už napojení nevadí
tak tak, změřit to v nejširším a nejdelším místě a podle toho koupit koberec ne nejbližší možný větší šířce, slepovaný to nebude ono

19.12.2011, 20:47 |
CRK woe, ty si kofola nebo co..??? :-))))))))))

19.12.2011, 20:47 |
hawai sám mám doma na pár místech nastavovanej koberec a už bych to nikdy neudělal. radši v celku

19.12.2011, 20:57 |
Komba Kokalolák fakt nejsem a uráží mě ten název:D ale co,učenej z nebe nespadnul a já bych třeba některý z vás strčil do kapsy v něčem jiném:)
Teď samozřejmě děkuju za vysvětlení jak se to počítá i to,že vim kolik toho koupit.Skládat jsem to nechtěl v žádném případě,nejsem blázen a jinak bych to řešil že bych koupil těch 330 a 450 min,když bych nevěděl jak to přepočítat na metry čtverečný.
tappe, si z něj nedělej prdel, co položí na ten zbytek

19.12.2011, 21:22 |
Komba jo to já koupim,lepší je mít trochu reservu;) a chtěl jsem i ty lišty kolem.to nejspíš koupim dlouhou nudly jestli mi prodat.Stejně ty konce bývaj zapletený ne...
ty kóty jsou trochu divný, ale pokud je to celý 330 tak jako tappaja a zbyde i na zalištování, konce zapletený nejsou pokud je to metráž

19.12.2011, 21:38 |
Komba ...zapoměl jsem dodat,že ani výtvarný kreslení jsme neměli:D
Šestikule: Tappaaja má pravdu, ještě mu pak zbyde :-)

19.12.2011, 21:43 |
Lukasino | Upraveno: 2011-12-19 21:43:57
harryp: jde o to, jeslti to je 330 vcetne 86, nebo 330+86cm :o))
Vlastne druha strana to udava, takze 330+86cm, 330cm role je kratka!
aha, ja myslel, ze A=330cm. Proste vem hrubej pudorys, bud doriznes vyklenek nebo holt prictes 30cm, ostrej nuz a jedu. Dvakrat mer, jednou rez. Pak kup ty listy a do nich si narez ze zbytku pasky a budes to mit jako klicku. Doporucuju kraje koberce podlepit oboustrankou.
Tak si nekoupí 3.4 běžné délky, ale 4.3m na 5m :-)
Když už to neumí spočítat, tak snad změřit ano.

19.12.2011, 22:31 |
Komba 86 není plus k 330.K těm 330 šíře je ještě + 27.
Na ty boyk jsou specielní lišty do kterých se dá koberec?Já většinou viděl že je tam je nalepený konec koberce který je opletený.
Komba:
86 není plus k 330.K těm 330 šíře je ještě + 27.
Chlape, tak jak? :o)
Na jedne strane mas 330+86=416cm
Na druhe strane 119+55+241=415cm
Coz by odpovidalo :)
takže na jedné straně to máš 415cm a naproti 357? :-))
To je fuk, vem koberec co se ti bude libit, muzes vybirat jak ze 4, tak z 5m sirky, coz je vyhoda.
Pricti si rezervu 5-10cm, urcite ti prodavac poradi. Hlavne at mas z jednoho kusu pudorys.
Ja tohle kdysi daaavno resil, radsi sem si priplatil, nez abych neco nekam prdelne dorezaval. O kdyz ten tvuj malickej vyklenek bych resil dorezem, ale zalezi taky, jakej koberec pouzijes, vyssi vlas to skryje. Nezapomen, ze koberec ma smer vlaken, takze ten dorez by mel byt ve stejnym smeru. Listy prilep tekutejma hrebama nebo mamutem.

Btw. Bladzej, nemas to nejak moc?
Kdyz vezmu zakladni sirku a dylku, tak je to 4,43*4,15=18,4m2
Ty pokud jsi pocital cistou miru, tak by melo vyjit jeste min, ne? :o)
no ty rozmery jsou proste nejaky divoky, sice 2-3cm nic neznamenaj, ale:
leva strana 260+168+14=415cm
prava strana 416cm
horni 330+86=416cm
spodni strana 119+55+241=415cm

19.12.2011, 23:07 |
Komba To je to moje posraný malování rozměrů a plsu ještě chalst z víkendu zřejmě :D Lukasino máš pravdu,je to tak ja to píšeš v těch součtech.
Každopádně 4,5x5m musí stačit.

20.12.2011, 20:22 |
Komba Plovoučku né no,co znam ze zkušenností tak všem to vrže:D

20.12.2011, 21:16 |
Nora plovoučka vrže???
uff to musela být teda echt kvalita práce

20.12.2011, 21:23 |
Komba Je fakt že to byly ty jedny z prvních a postarší,ale strašný po tom chodit.