
Navštíveno 5989x

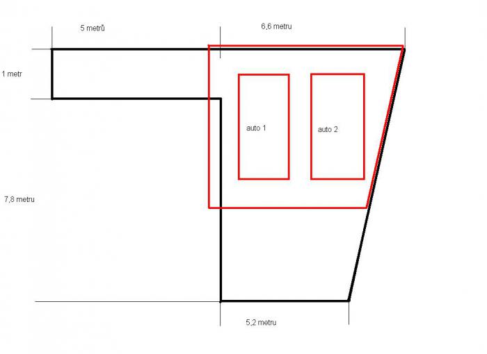
potřebuju poradit od zkušenějších, jak nejlépe položit zámkovku na plochu, co vidíte na obrázku. Beton před barákem je tlustý cca 40 cm, takže bourat nebudu. Chci položit zámkovku na ten beton. Moje představa je dorovnat betonem část na pravé straně ( u cihlové stěny - sousedova stodola )na úroveň stávajícího starého betonu a pak na celou plochu udělat potěr cca 8 cm tloušťky včetně kari sítě a na to poklást dlažbu.Kolem dokola samo obrubníky. Odspádování od baráku je asi 5cm/metr. Šéf v práci mi tvrdí, že i na beton bych měl dát alespoň nějakou vrstvu jemného makadamu a potěráku a dlažbu pak na to. Za žádnou cenu ale nechci, aby se pak dlažba propadla v místě, kde se bude jezdit. Proto bych chtěl pokládat přímo na beton, případně podsypat třeba jen v řádu milimetrů... Mám se při tom odspádování bát vody? Chci pak skoro 2/3 plochy nadstřešit a udělat stání pro dvě auta, jak je vidět na dalším obrázku. Jak byste to řešili vy? Dík za rady

druhý obrázek je pohled shora, kde vrchní část je u baráku a spodní část je příjezdovka. Pravá část je ta cihlová stěna. Levá část obrázku je metr široký chodník u baráku. Na fotce není vidět
kamoš teďkaj taky řešil , beton nebeton , všecko šlo do sraček , vrstva recyklátu , makadam a teprův dlažba

20.09.2011, 19:33 |
Dudelina | Upraveno: 2011-09-20 19:34:35
Osadit obruby.
Tam kde není beton bych to vybral 20cm pod okolní beton, dosypal a zbouchal 16/32 štěrk, a na to i přes beton už 10cm 4/8, znovu přejet deskou a pak už zámkovku.
Nechat si nějaký podsyp stranou na dorovnání co se tě propadne po zimě a hotovo.
bourat nee :-) max dodělám tu pravou část betonem na úroveň toho stávajícího a pak po celé ploše cca 5 cm jemného kameniva. Pak zámkovku. To je pro mě jednodušší varianta, ale stejně pak budu mít pocit, že po čase budou vidět vyjeté koleje...
Že to dřepne mimo ten masivní beton je jasný (pokud bys tam neudělal taky nějaký 40cm beton špalek.
Právě proto s tím počítej a holt strávíš někdy den práce na podsyp propadlých míst.
dudelina: byl jsi rychlejší, ten poslední příspěvek jsem měl chvilku rozepsaný... :-), ale tak jsem to v podstatě myslel. Tu pravou část bych dodělal betonem na úroveň toho starého. Je to blbě vidět, ale už tam mám utopené 4 betonové železniční pražce + další velké kusy betonu. Mezery mezi nima bych vylil a pak dovršil do roviny s tím starým. No a pak na celou tu plochu to kamenivo frakce 4/8. To bych dal ve vrstvě max 8 cm. To by mi spolu se 6cm dlažbou dorovnalo přesně schodek u vchodových dveří. Mohlo by to tak být ok?
Jestli už výš nemůžeš, tak je to tak asi nejlépe.

21.09.2011, 21:18 |
rebel no nevím osobně by sem to polil to co je hlína -betonem a pak na to položil šutry z pískovce

21.09.2011, 21:19 |
rebel jak daš dlažbu kde neni beton bude se to propadat pořád .Jak na to najedeš autem a podobně
tak to me taky zajímá,budu snad jěště letos taky dělat u baráku, mám tam taky podobne rozdrolenej beton :(
Osobně vidím největší riziko ve vodě. Beton ji nevsákne, takže pokud nebude opravdu dostatečný spád, aby voda odtekla, bude ti zůstávat v pískovém loži a v zimě ti to potrhá celou dlažbu.
no jo, kdybych se nebal te vody, tak to davam na beton a na nic se neptam... Ale stejně si s tou vodou myslim, ze i kdyz je zamkovka udelana na treba 30 cm hrube kamenivo, pak par cisel jemneho a pak dlazba, tak pres zimu je podle me z toho hrubeho kameniva vespod jedna velka zmrzla deska, ktera pri kratkych oblevach stejne vodu nikam nepropusti... a to co staje na povrchu stece taky maximalne do spar ve dlazbe nebo jen minimalne pod ni a vic nema kam utect/vsaknout se... To je muj nazor, nicim neovereny, jen si tak myslim, ze mezi 30cm betonovou deskou a 30 cm kameniva promrzleho na kost, kde kazdou skulinku vyplnuje led, neni zadny rozdil, co se tyka odvodu nebo vsakovani vody...

23.09.2011, 17:12 |
fredy ještě bych uvažoval o tom nasypat tam ten štěrk jak se tu píše, pořádně udusat a ještě bych na tom normálně nějakou dobu parkoval ty auta aby si to pod tou tíhou sedlo. pak bych to dorvnal a dal bych zámkouvou, s vodou teda neporadím, ale spád podle fotky mě přijde v pohodě.
takže moje rada - beton vyrubat a udělat to komplet nově. Měl jsem podobný problém před 2 roky, když jsem dával zámkovku u sebe na nájezdu. Taky byly skoro všude panely 28cm síla a chtěl jsem je tam nechat. Nicméně jsem si pozval na kafe starýho fachmana, ať mi řekne svůj názor a "Všechno ven a podloží stejný. Jak budeš mít nesourodý podloží, začne to dříve nebo později dělat vlny. Dlažba tvoří celek a jako celek pracuje, i když to třeba nevidíš, zvedá se během zimy nahoru dolu. Na správné struktuře podloží se hýbe třeba jen o centimetr, ale když na ten beton hodíš jen pár čísel písku, bude se to zvedat klidně x-násobně více."
A tak jsem si na víkend půjčil pořádný kango a dva dny jsem ty panely rozbíjel, náklaďák byl pak rád, že ten konťák vůbec natáhl nahoru. Dlažba drží skvěle, vlny žádný. Rok po mně dělala nájezd sousedka, taky tam měla panely a nechala je tam. Můžeš se klidně přijet podívat, jaký "moře" z toho má po první zimě.
Že si to sedne jsme si tu myslím už řekli - na jaře prostě kus ještě rozebere a dosype. (Že je nejlepší odebrat původní beton a nahradit ho novou skladbou je myslím jasné.)
"Beton před barákem je tlustý cca 40 cm, takže bourat nebudu." - bourání tedy tazatel nechce.
Rady tedy byly směřované na jeho možnosti.
no jo, jako jestli je to provizorium, tak holt na beton a průběžně to opravovat. Pokud to má ale sloužit dalších x let, tak bych to vyrubal a udělal pořádně. Tady není, co víc rozebírat. Zápory pokládky přímo na beton tu zazněly, fungovat to bude i na betonu, přestože je to proti principu zámkové dlažby. Pro a proti si stejně musí zvážit stavitel.