
Navštíveno 13431x

Protože moc lidí nepoužívá nečtené příspěvky, tak raději založím nové téma a že jich ještě bude :-) Aktuálně jsem ve stavu, kdy jsme se na 99% rozhodli zadat základovou desku firmě (respektive skoukromníkovi o kterém víme jak dělá) a desku 10,5 x 18,8m udělá za cca. 250tKč se vším všudy. Při konzultování se chci zeptat na pár věcí:
1. Hydroizolaci udělat klasicky až na vrchu základové desky a postupovat tak, že se nalepí napřed jen pásy pod zdivem s přesahem třeba 20cm a zbytek podlah se pak dolepí až po hrubé stavbě? (udělat to naráz prý skýtá riziko poškození což je logické) a nebo se prý teď dělá to, že vylejou základovou desku o něco níž než je ztracené bednění, udělá se izolace a znovu se to zaleje betonem a tím pádem se izolace neponičí. Co říkáte na tento postup?
2. Prostupy na odpady a vodu jsou jasné, ale co elektrika, když rozvadeč mám uprostřed v technické místnosti? Ten přívod se tahá až pak v podlaze?
3. Spodní sání krbových kamen? Opět se to řeší až v podlaze a nebo je dobré to udělat v desce? Je to nutné, opravdu pak je tak zásadně lepší spalování? Chceme kanadská krbová kamna a sestra to má bez spodního tahu a nemůže si to vynachválit.
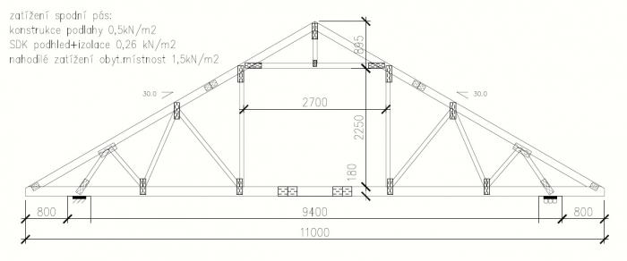
4. Začal jsem už řešit i střechu, vazníky atd. V projektu mám sklon střechy 26°. Kamarád stavař mě říkal, že by udělal klidně méně kvůli vzhledu domu, že minimum je 22° Otázka je zda předělávat projekt kvůli pár stupňům a zda to nebude mít negativní vliv na nosnost a třeba i odtávání sněhu.
5. Stropy máme v projektové dokumentaci 2700mm, ale norma a doporučené minimum je 2500mm. Doma máme 2550mm a je to takové dle mě optimální, kolik by jste doporučili Vy z vlastní zkušenosti?
6. Topení máme podlahovku všude + žebřík na ručníky v koupelně. Je rozumné do takového systému začlenit i radiátor do garáže a nebo to bude zdroj koroze a zanášení podlahovky a raději na to prdět?
Díky moc za rady, klidně i na jednotlivé body ;-)
hydroizolaci ( ipu ) dej enom pod zdi , než to dostavijáš nahrubo , tak bys to mimo zdi úplně zlikvidoval.já sem doizoloval zbytek až před potěrama.
přívod eletriky sem taky řešil a nechal sem si delší kábl , až to bylo na hotovo do rozvaděču , tak se to ufiklo a bylo.natahnůt to ide ve zdi nebo v dlážce , kama je to jednoduší.

17.02.2011, 07:37 |
TUNER Čim vyší stropy,tim víc to budeš muset vytápět,ale asi to nebude takovej rozdíl,jako u mě 375 cm... ))))
Osobně bych nechal těch 270 cm,nemam rád nízký stropy a nemá cenu chodit na minimální hodnoty.

17.02.2011, 07:56 |
JarinEsco | Upraveno: 2011-02-17 07:59:29
1. Hydroizilaci - jen pásy, přesah +- 10cm. Na co dělat dvojitý beton a pak ho zase mlátit ven, aby ses dostal na IPU? Myslím, že celkem zbytečné.
2. Jelikož i hlavní přívod elektriky má nějakou normu a musí být dle projektu v nějaké hloubce, nevím teď přesně ale buďto 60 nebo 80cm - máš to v projektu, dal bych dostatečně tlustý husí krk už i do základu - stejně jako kanalizaci. Hlavně bacha na ohyby - dělat co největší radiusy
3.Stačí v podlaze mezi EPS - mám uděláno, zatím nepoužívám-zazátkováno a nemám s tím problém. Občas jen vyvětrám. A hned je v domku čerstvý vzduch
4. Projektant
5. Mám 250 cm, měřím 172cm a možná by to chtělo o nějaký centimetr výše. Ale myslím, že 270 je už i dost.
6. Určitě si ho tam dej. Budeš potřebovat přes zimu něco v garáži kutat. Nemusíš to vytápět na 22°C jako v domě, ale určitě bych ho tam dal. Já měl při velkých mrazech při vypnutém topení ráno v garáži +- 7,5°C

17.02.2011, 08:01 |
Dudelina | Upraveno: 2011-02-17 08:03:04
1) Izolaci jen pod cihly s 10cm přesahem, pak to doděláš.
2) Rozvody el. dáš až do podlah - předpokládám klasickou skladbu 10cm. Edit: přívod dej skrze základ. desku - nech husí krk a hotovo.
3) Sklon střechy... co by tě ty 4° řešily?
4) Stropy bych dal klidně 2,6m, teď jde o to, zda se kvůli 10 cm předělávat s projektem.
5) topení nevím, ale myslím, že topení v garáži nebude zásadní problém z hlediska zanášení.
Izolaci jsi už řekl, určitě jen pod zdi, které budeš stavět a zbytek až před vyléváním podlah. Ten prostup elektriky já mám už ve ztraceném bednění - tedy v základech a vyvedený dovnitř. Určitě tam dej klidně 15-20cm husí krk. Uvidíš, že to nakonec bude ještě tak, tak. - Nemám elektriku jen kabel do baráku, ale taky řadu kabelů ven z baráku(venkovní světla na zahradu, zvonek, el. otvírání brány, el. vrátný, atd.) Nezapomeň na prostup vody do baráku! Já mám krbová kamna a přívod vzduchu jsem nedělal - dělá se jen pro obestavěné krby.
Střechu a změnu sklonu určitě řešit nutno se statikem!!! Až ti začne pak praskat trámoví nebo věnec, tak se budeš mlátit do hlavy.
Stropy. Já jsem šel na těch minimálních 250 a moc se mi to líbí - úspora vytápění a hlavně jsem šel až nadoraz kvůli větší vrstvě izolace základové desky- mám taky podlahové topení.
Toho radiátoru bych se zas tak nebál, ale nebude mít takovej vyzařovací výkon když ho budeš mít napojen na podlahovku a řekněme, že do podlahovky budeš pouštět max 40°C.
Jen popřemýšlej nad dvěma věcma: Když budeš zasypávat základy-před vylitím základové desky- nepoložíš před usazením kari-sití a zalitím na zem XPSku? Když pak budeš vylívat podlahy - na podlahové topení - popřemýšlej a zpočítej si, jestli radši nejít do anhydritu. Dnes už to není taková petarda. Hotovej celej barák do dvou hodin a hlavně pak přenos z topné hadice do podlahy je lepší.
Jo a nepopomeň základy-sokl zateplit XPSkou!!!!!To je hodně velkej tepelnej most! A už kvůli tomu systému vytápění.
Anhydrid - určitě. Mě vyšlo vylití cca 95m2 v 5,5 - 6cm vsrtvě kvůli podlahovce na 33.000,-. Práce na 3 - 4 hoďky, další den pochůzné a perfektně rovné. Dobře obteče trubky na podlahovku-lepší přenost tepla.
Já lil 3,5-4cm nad hadice podlahovky a za 136m2 jsem dal 55tis. Dělali mi to z KVK.
jura.j: Jasný, díky.
TUNER: Máme doma právě 2,55m a zdá se mě to úplně ideál, ono každých 5cm dolů udělá na objemu dost.
JarinEsco: Proč pak mlátit beton? Já to bral tak, že když se ta hydroizolace zaleje, tak pak už jí neřešíš, jen jí zahneš přes 1. řadu tvárnic z venku. Prostě bude schovaná šlupkou betonu. Zbytek jasný, díky.
Dudelina: Ten skolon by hlavně řešil opticky nižší dům a štíty, ale máš pravdu, že to je zanedbatelné. Strop je sádrokarton zavěšený na vazníky, takže by neměl být problém jít třeba na těch 2,6m a v projektu vůbec nic neměnit. Zbytek jasný, dík.
Lucni.konik: Voda je jasná, to tam mám a na elektiku je to dobrý nápad, třeba ten zvonek jsem vůbec neřešil ;-) a je fakt, že kabel je kabel než nějakej bezdrát. Na střechu prdím, byl to jen nápad kamaráda jak to opticky snížit. Stropy určitě ponížím, 2,7m se mě prostě zdá moc. Na podlaze mám v projektu 140cm polystyrenu, sokl ztraceného bednění je taky zateplený. Anhydrit je taktéž v projektu, má to i soused a to se mě moc líbilo. Tobě taktéž díky.
Takhle vypadá řez, myslím, že snížit strop půjde jen nižším zavěšením sádroše ne?

Pokud máš možnost to snížit, proč ne. O to víc se pak vejde navrh izolace. Já mám 26cm a dal bych i víc, ale už se nevejdu. Jo a s tím snížením. Záleží pak na jakého ouředníka narazíš. Někdo může bazírovat na předělání výkresů, někdo nad tím mávne rukou.

17.02.2011, 10:15 |
Alííí Tuner#2: Víceméně už všichni poradili. Máš i nějakej 3D pohled na dům?
Lucni.konik: To by neměl být problém, projektat sám říkal, že takovéhle drobné změny není problém překreslit, např. jsme posouvali dvě okna víc k sobě kvůli pultové zídce u kuchyně.
7. Ještě když tu řešíme tu podlahovku, už jsem obeslal pár firem na které jsem nazbíral kontakty na výstavě. Máte někdo nějaký dobrý tip od koho a zda dávat i ty dražší systémové desky a nebo rovný polyš, na to odrazivou fólii a trubky tam napíchat příchytkama?
8. Koukal jsem už i na okna/dveře. Mám doporučený prostup 1,1W/m2 a to vychází něco kolem 6/7 komora a k tomu dvoj/trojsklo. Je spolehlivý systém když je sklo v rámu lepené a ten už nemá žádný vystužující profil a profil je jen v hlavním rámu? Co těsnění, stačí dvě a nebo je lepší 3 protože venkovní guma celkem rychle odejde/ztratí vlastnosti?
Alíí: Jen starší pohledy v projektu ze stran. Chybí tam okno do garáže a garáž ve finále bude mít dvoje vrata a uprostřed sloupek na šířku tvárnice.


17.02.2011, 10:21 |
Alííí 8. Lepené sklo stačí, profil by Ti jen zbytečně dělal další most. 6-komora taky stačí (rozdíl mezi 6 a 7 komorou je minimální), ale asi bych volil trojsklo a 3 těsnění. Pak si ale zvykni, že neuslyšíš nic zvenku. :-) V tomhle jsem radši vždycky krok napřed, než šetřit.

17.02.2011, 10:22 |
Alííí Čím budeš topit? Kromě těch kamen, že máš dva komíny? Plyn?
OT: Mě původně architekt tlačil do takovýdleho moderna (na vesnici o 1000 obyvatelích) :-)

Ještě dám půdorys


17.02.2011, 10:28 |
Tuner#2 | Upraveno: 2011-02-17 10:32:09
Alííí: Dobrý návrh jsou i větší zběsilosti ;-) My jsme šli do klasiky a celkově jednoduchého řešení jak kvůli výstavbě svépomocí, tak i kvůli cenám. Ono všechny ty výklenky a úskoky pak prodraží vše. Dva komíny proto, že jsme chtěli schovat komín pro garáž a případné topení v jakoby dovnitř a udělat jen prostup, ale nakonec ho nebudu dělat vůbec, udělá se pro něj jen základ a to přímo v garáži a uvidí se zda se vůbec bude někdy dodělávat. Jinak topení plynový kondenzační kotel + kanadská krbová kamna jak jsem psal. Zvažoval jsem i tepelná čerpadla, ale otázka kdy se takový systém vrátí a jaký servis to po pár letech bude vyžadovat?
Co se týče oken, tak to zkonzultuj určitě s MazliG-em. Každopádně - trojsklo, a dovnitř nedávej nerez nebo ALu rámeček, ale dej tam ten "umělohmotnej", aby tam nevznikl zbytečně tepelný most. To těsnění doporučuju určitě troj. Pokud budeš dělat nějaké francouské dveře, nebo vchodové dveře, určitě bych je dával na tři panty, nejlépe zesílené. A co se týče stavebního otvoru okna(či dveří) po obvodu, kde bude okno usazené bych dal po obvodu 3cm XPS-ky. Opět tím zabráníš tepelnému mostu.
Podlahovka. Já jsem nakonec volil do podlahy polystyren černej(dává se na fasády) a je vhodný i do podlah(údaj výrobce). Navrh jsem dával systémovou desku(pupky), které byli potaženy PS fólií:
[ Link ] Proč? Pod anhydrit se musí dávat igelit a kvůli osazení topné hadice do systémové desky by to bylo krapet napikaču. Pokud prostě budeš osazovat hadici do systémové desky, tak jedině s PS fólií. A na místech stejně prichytit háčky. Pokud budeš dávat jen na rovný polystyren. Tak polystyren, igelit, hadice na háčky a pak zalít.
Systémová deska má jeden hlavní přínos a to ten, že máš všude stejné rozteče hadic. Jinak se to myslím kvůli nim hodně prodraží.
Já - podlahový EPS, reflexni alu odrazová folie, vyjet s ní až na zeď, kolem zdí dilatační pásky z pěnovky, natáhly se hadice, rozteče jsem si hlídal co to šlo, přichytit svorkama a zalít.
Jasný, mě ale vypekl maník s tím, že dva měsíce měl plány na topení a pak řekl, že to dělat nebude, tak jsem se do toho vrhnul sám, že si to celý dám dokupy sám. Nakonec jsem ale sehnal chlapíka, co mi to dotáhnul dokupy. Proto jsem kupoval systémovky, protože v minulosti jsem s nimi už pracoval.
To je fakt, spoléhat se na někoho. Proto jsem si to taky dělal sám ( kecám, mladá taky pracůvala - takové krásné spoje IPY jste ještě neviděli ) a "firma" jen natáhla hada a zalila.
jasně,strop snížíš zavěšením sádroše,ale to sání ke krbu udělej určitě pod deskou,jinak když je ta trubka pod čistou podlahou v poliši, tak nasávaný ledový vzduch hodně ochlazuje podlahu
MazliG: Poradíš? Díky ;-)
OT: alííí: mě se ten návrh tvýho architekta líbí :)

22.02.2011, 19:22 |
JA elektriku vytrubkovat,do trubek si rovnou připravit protahovací dráty a jednu trubku do foroty...:-)

22.02.2011, 23:33 |
Tea 1. Hydroizolaci udělat klasicky až na vrchu základové desky a postupovat tak, že se nalepí napřed jen pásy pod zdivem s přesahem třeba 20cm a zbytek podlah se pak dolepí až po hrubé stavbě? (udělat to naráz prý skýtá riziko poškození což je logické) a nebo se prý teď dělá to, že vylejou základovou desku o něco níž než je ztracené bednění, udělá se izolace a znovu se to zaleje betonem a tím pádem se izolace neponičí. Co říkáte na tento postup?
Pokud bude hydroizolace asfaltovými pásy IPA, pak se nejčastěji používá první způsob, druhý to prodražuje o vrstvu betonu. Pokyd by se použili svařované PE široké pásy, tak zase druhý způsob, protože pak se to špatně napojuje.
2. Prostupy na odpady a vodu jsou jasné, ale co elektrika, když rozvadeč mám uprostřed v technické místnosti? Ten přívod se tahá až pak v podlaze?
Na hlavní přívod natáhnout pod deskou kopoflex 75 a k tomu kopoflex 50 na ovládání brány, apod. Vše s velkými rádiusy, měla by tam projít i zemnící kulatina.
3. Spodní sání krbových kamen? Opět se to řeší až v podlaze a nebo je dobré to udělat v desce? Je to nutné, opravdu pak je tak zásadně lepší spalování? Chceme kanadská krbová kamna a sestra to má bez spodního tahu a nemůže si to vynachválit.
To stačí v podlaze.
4. Začal jsem už řešit i střechu, vazníky atd. V projektu mám sklon střechy 26°. Kamarád stavař mě říkal, že by udělal klidně méně kvůli vzhledu domu, že minimum je 22° Otázka je zda předělávat projekt kvůli pár stupňům a zda to nebude mít negativní vliv na nosnost a třeba i odtávání sněhu.
Záleží na krytině, některá při 22st. vyžaduji již těsné podstřeší (záklop, lepší difuzka, přelepování spojů), vyšší sklon je bezpečnější, ale zase mohou být trošku dražší vazníky, připadně jejich doprava (nadměr na kamionu), potom se špička dodělává až na stavbě.
5. Stropy máme v projektové dokumentaci 2700mm, ale norma a doporučené minimum je 2500mm. Doma máme 2550mm a je to takové dle mě optimální, kolik by jste doporučili Vy z vlastní zkušenosti?
Stropy jednoznačně maximum co vyjde.
6. Topení máme podlahovku všude + žebřík na ručníky v koupelně. Je rozumné do takového systému začlenit i radiátor do garáže a nebo to bude zdroj koroze a zanášení podlahovky a raději na to prdět?
Kombinace podlahovky a jednoho radiátoru je blbost, protože by musel být na radiátor zvlášť okruh, kvůli teplotnímu spádu. Pokud jsou radiátory a kousek podlahovky, lze to řešit ze zpátečky, ale opačně ne, to by musel být radiátor obrovský. Do garáže jednoznačně taky podlahovku, máš ji do systémovky namotanou za odpoledne a je to bezproblémové řešení a navíc díky akumulaci té velké plochy to bude držet teplotu i při častějším otevírání vrat.
ten radiátor do garáže na okruhu s podlahovkou by fungovat mohl, přece jen garáž ti stačí vytápět na míň stupňů, takže ani těch 40°C nebo kolik se do podlahovky dá tlačit by asi stačilo, ale já bych udělal sólo okruh. podlahovku do garáže bych teda nechtěl a už vůbec bych nechtěl topit celej barák jen podlahovkou. záleží na jakou tepelnou pohodu jste zvyklí, ale osobně bych podlahovku bral jako podpůrnej prvek dotvářející tepelnou pohodu a ne primární zdroj vytápění.

23.02.2011, 00:22 |
Cenda já bych se většího radiátoru v garáži nebál, pokud tam nechceš mít teplotu jako v bytě, ale stačí ti v těch větších mrazech nižší. Do radiátoru jde cca 30-35°C. Stejně tak bych nevolil druhý okruh s vyšší teplotou vody, kdybys přeci jen chtěl někdy dát tepelné čerpadlo. Ve finále by to odhadem bylo i dražší, než zvětšená plocha.
Tea: Díky. Vše jasné až na:
5. Proč stropy maximum?
6. Podlahovku do garáže a topit tam furt fakt ne, poslední dobou jsem nějakej "línej" a že bych tam i spal jako když jsem stavěl auto mě už přešlo :-D
Luke_288: Bydlím teď u přítelkyně, kde je podlahovka 15 let + občas se zatopí v krbu a byť je tu kolem 19 - 20° tak je Tě subjektivně menší zima než při 24 radiátorových u nás doma. Samozřejmě i podlahovkou by šlo topit na 24 ale je to zbytečný, už jsem si zvykl a naopak nemám rád přetopeno.
mas vcelku podobny dum jako mam ja, ja ale nechal zmenit stresni konstrukci, pac me stavitelskej ukecal ze je skoda zabit prostor pod strechou vaznikama, poslechl jsem, a mam misto nepouzitelny pudy plny vazniku dalsich cca 80m obytne plochy.
Tuner: jj, mě spíš na podlahovce vadí dlouhá doba než se obytná místnost natopí. pokud jede pořád, tak asi dobrý, ale já čas od času odjedu na týden, dva pryč, a pak topení vypínám. a pokud jsou mrazy jako teď a místnosti vychladnou, tak vím jak dlouho trvá natopení radiátorama, natož podlahovkou.
H-Honza: Taky jsem nad tím přemýšlel, ale ve finále ve stáří je patro k ničemu a pro běžný život ta plocha co máme obytnou dle mě stačí. Mám spočítáno na vazníkách ještě nostnost 75kg na m2 uprostřed, takže si tam udělám z prkem "podlahu" a bude to na "nepotřebné" věci jako půda.
Luke_288: JJ torchu větší setrvačnost tam je, ale dnes ve spojení s anhyditem nic hrozného.
No, mám podlahovku, na hadici mám 3,5cm anhydritu, a na anhydritu 1cm tlustou dlažbu+lepidlo. Nepociťuji, že by se dům nějak extra dlouho natápěl a navíc pocit tepla od nohou je daleko lepší než v místnosti 24°C a chlad od nohou, to je člověku pak zima pořád. Topím na 21°C a od devíti večer do odpoledne do tří mi barák vychladne na nějakých max 19,5.
tak kdyby ti vychladnul za ten cca půl den víc, tak by bylo něco špatně, já mluvím o tom, kdy jsem teď byl měsíc pryč, byt topím na 24°C a v těhle mrazech jsem přijel a bylo tu 17°C (mám nastaveno 15°C, přece jen nechci trápit dřevěnou podlahu). zpátky na 24°C se to topilo dva dny a to jsem do radiátorů posílal 70°C a v pokojích krom ložnice mám radiátory dva, poměrně velký.
navíc třeba u mě je to i o tom, že bych nechtěl všude dlažbu.

24.02.2011, 10:03 |
Tea 5. Proč stropy maximum?
Rozhoduješ se mezi 2,5 až 2,7m, rozhodně doporučuji jít na maximum těch 2,7m, je to pocitově mnohem lepší, větší objem vzduchu v malých místnostech, na spotřebu naprosto minimální vliv, hlavně u podlahovky.
6. Podlahovku do garáže a topit tam furt fakt ne, poslední dobou jsem nějakej "línej" a že bych tam i spal jako když jsem stavěl auto mě už přešlo :-D
Je třeba si uvědomit, že podlahovka je nizkoteplotní systém se spádem cca 30/20st, tedy pokud bys to chtěl vytápět radiátorem napojeným z okruhu podlahovky, tak by musel mít plochu několik m2, aby tam teplota byla trochu přijatelná. Výhoda podlahovky v tomto případě je v nižší ceně, platíš jen za trubku navíc a v té akumulaci, protože když v zimě otevřeš vrata a vymění se ti vzduch, tak se znovu ohřeje dalako rychleji z plochy podlahovky než radiátoru. Navíc garáž sousedí přes příčku z obytnou částí, takže ji musíš temperovat, protože příčky jsou tepelný most a mohou se rosit vnitřní stěny obytné části, pokud garáž nebude vytápěna.
Co se týče podkroví, lze i u vazníků nadimenzovat obytný, skladový prostor, v mém případě cca 50m2, při sklonu 30st. viz obr.

24.02.2011, 10:05 |
Tea Ještě ten vazník

Tea: 5. OK poradím se ještě se známým co dělá sdk podhledy.
6. To je otázka, garáž je navržená ze slabšího zdiva 250mm a myslíš, že to fakt bude rosit, když "příčka" je stejná jako obvodové zdivo baráku? Já myslel, že naopak se ta stěna nebude muset zateplovat, zateplení mám v plánu jen ze 3 stran a garáž nechat holou bez zateplení. Jak říkám, je otázka zda tam v mrazech budu chodit a při +10° venku by se zavlažilo radiátorem a na na práci by to stačilo.
na jakou světovou stranu budeš mít tu garáž?
podlahovka všude - co nejvíce dlažby - nepoužívat redukované teploty - max. teplotní komfort - howk
co člověk to názor, nikomu to cpát nebudu .o)
MazliG: Dlažba bude asi jen koupelna a chodba + před krbem (možná kuchyň to stále váháme), jinak lino.
Co si mám představit pod pojmem redukované teploty?

24.02.2011, 11:55 |
Alííí Muj dotaz: Proč myslíte v garáži nedělat podlahovku?
Budu mít tepelný čerpadlo s velkou rezervou, ohřívat budu nakonec celej barák podlahu (bungalov) + ohřev teplý vody, a s garáží jsem taky počítal...?
Já říkám ne hlavně kvůli tomu, že garáž mám řešenou jako "studenou", slabší zdivo bez izolace a topit do ní zbytečně zvýší náklady na vytápění. Ale jinak proč ne pokud tam chceš mít teplo jiný problém krom nákladů v tom není.
tak garáž udělej jako samostatnej okruh a krapet ho zaškrť. Mít možnost udělat si vytápěnou garáž, tak do toho jdu. Dělat v tomhle počasí venku v bahně auta je opruz a že jich poslední dobou dost bylo. Ikdyby jsi ten okruh do tý garáže udělal, tak ho můžeš klidně zavřít a netopit tam. Ale udělal bych to. Pak když změníš názor, tak dodělávky jsou pak moc pracné.
Alííí: TČ s velkou rezervou ? proč budeš osazovat pumpu s velkou rezervou ? to vymyslel kdo ? projektant ?
já jsem vytáhl do garáže velkej radiátor, který mám na nule, takže si udržuje v tomhle počasí tak 7 stupňů. pro temperování, 20 tam topit fakt nehodlám .o)
topit garáž podlahovkou, když tam nebudeš podnikat je blbost, ztráta skrz vrata apod. je prostě velká a bude ti to ochlazovat zbytečně zbytek topný soustavy.
vrata - jako sekce samostatná je u=řekněme 1,0, ale okolo prostě profičí - howk
jinak hlavně projekt ! od projektanta co má mozek.
Lucni.konik: A co když tam fakt nebudu chtít topit, nezamrzne tam voda? Samostatný okruh je jasný, to má podlahovka všechny místnosti regulovatelné na tom hlavním rozvaděči/ventilech.

24.02.2011, 12:29 |
Alííí MazliG: Projekt je jedna věc, a znalec z oboru tepelných čerpadel druhá věc. Ztrátovost stavby mám asi 5 kWh, čerpadlo od projektanta 11 a koupím asi 14. Nechci v mrazech -20°C topit jak na elektriku... Ale to je každýho věc.
Ale garáž jako samostatnej okruh je dobrej nápad.
máme to v baráku jako mazlig, v garáži pro dvě auta jsou na sólo větvi čtyři menší radiátory který jsou uškrcený na 1 a topí garáž asi na 15°C
projektant na topení je třeba dobře vybrat. když jsme stavěli bytovky, tak tam si skoro každej vlastník pak stěžoval, že místnosti není možný vytopit na kalkulovanou teplotu. když už se na ní po tejdnu dostanou, tak pak stačí na chvilku vypnout topení a znova se natápí x hodin jen proto, že projektant počítal s nonstop topným režimem bez natopení.
já když kupoval byt, tak jsem si do každý místnosti dal nad rámec projektu jedno topný tělěso navíc a ještě silnější a funguje to, jen ložnici jsem podcenil, ale tam mi teplota kolem 22°C nevadí
samozřejmě jsem myslel projektanta TZB na topení - né projektanta budovy !
a kámo nemáš pravdu ! defakto v ničem co jsi tu napsal - ty pumpy se staví zcela jinak - ale je to na dlouho - příklad: stručně
domek: 181 m2 čistá topená, 38 m2 k tomu garáž temperovaná - ztráta asi 7,5 kw - topím to země-voda tč - kw stavěné na tuhle ztrátu - když máš DOBŘE UDĚLANÝ PROJEKT NA TOPENÍ - elektrika ti nesepne ani v mínus 20 - nebavíms o projektu který dělá firma co prodává pumpy viz. IVT .o) - můj kompresor baští 1,3 kw - kdybych a natočí kolem 2000 h ročně, když si tam postavíš pumpu 14 kw, která bude baštit 3 kw - tak už jsi tam asi o 8 tis. ročně víc za el - a to je fakt jenom 1 procento tvého názoru, v kterým nemáš pravdu
topím tím 2 roky, projekt mi dělal pán, co projektuje 50 pump ročně, projekt do nejmenšího detailu regulací, počtu smyček, rozteče, snížené rozteče po obv. stěnách atd atd atd - nemachruju tady - píšu ti že nemáš pravdu a šetřím ti tím peníze !
to je jasný, každá cimra zvlášt výpočet tepelných ztrát atd. ten projekt je 4-7 tis. na domek dle náročnosti - ale kdo má svoje názory typu kamarád povídal, strejda ... bavíte se o investici kolem 500 tis. korun - tak přemejšlejte mozkem a ten projektant ho musí mít taky - protože to co jsem občas viděl - nou koment

24.02.2011, 12:57 |
MazliG | Upraveno: 2011-02-24 12:58:55
tady neplatí čím víc kw tím víc teplo - bože - ty jako zdroj nemáš tč - ale vzduch nebo vodu - a tam když dojde šťáva, pak tě ani 14 kw pumpa nezachrání
musí se to fakt vymyslet dobře, dobře dimenzovat, spočítat, navrhnout - žádný domoviny v tomhle vymešlet .o(
z tzb-fora
termím výstavby březen 2007 - až ještě dlouho .o)
takže domek heluz 365si,
TZ spočítána na 8,8 kw - vůči tomu jsem ale přizateplil
izolace EPS 100 mm + silikon fasáda
okna gealan S8000, trojskla swisspacer u = 0,6
u oken jsem se dostal na U kolem 1,0, vchodovky prosklené trojskly kolem 1,4
na šikminách v krokvích 26 cm izolace, stropy 40 cm izolace
parozábrana gutta sunflex něco ... AL s bublinkou
střešní okna - obyč socky velux - GGL
ČISTÁ podlahová plocha domu 176 m2 plus 38 m2 garáž temperovaná na 8°C - radiátorem, jinak všude podlahovka
zastavěná plocha je 173 m2 = domek + garáž, z obýváku je ale ukrojeno na podloubí - nevim asi 10 m2 plus deska kouká z podloubí ven, takže údaj zastavěné plochy je asi zcela nepodstatný
IVAR vč. přislušenství
TČ země-voda, viessmann vitocal 222G, tf 4,3, 250 litrů zásobník TUV integrovaný, nenatápím žádnou přídavnou nádrž ! topný okruh na přímo,
ještě podotýkám, že sice máme komín, ale nemáme kamna, takže dotop nebo něco podobného NE, píšu jen proto, že když se s někým bavím, vykládá mi o spotřebě jejich domku - topnýma panelama - jak je to super - a pak jsem zjistil, že si o víkendy topil kamnama s výměníkem do radiátorů .o)
- dole topíme na 22-23°C, koupelnu tak 24, garáž radiátorem na 8°C, patro - koupelna a wc 24, ložnice a zbytek na 19°C, bydlíme tu zatím 2 - další kousek čeká na vylíhnutí .o),
nepoužívám žádné noční redukované teploty, nelze moc dobře u TČ s podlahovkou vymyslet - takže topení 24h denně - a i to takhle pumpě dělá určitě líp
doma máme vše na elektriku - tedy topení, ohřev TUV pumpou, varnou desku, lednici s mrazákem, mikrovlnu, pračku, myčku, notebook, tv atd atd - zkrátka klasika nic exgtra, všude úsporné žárovky 26 w, bodovky 2,7 w chodby, koupelny, wc
tlaková kanalda - takže řádná pumpa která žere plus další ultra žrout centrální vysavač
- bydlíme tu od začátku prosince, spotřeba od 17. 12. 2009 do 17.01.2010 - tedy vánoce,cukroví a ostatní kraviny včetně mojí 14 denní dovči / přitelkyně je na mateřské, takže pořád doma / je 962 levných kwh, a 99 kwh drahých, tarif D56
žádná rekuperace, větráme klasicky okny, vlhkost v domě 45% - měřím nějakým sociálním vlhkoměrem, který jsem dostal darem .o)
větráme klasicky, buď ventilačka, nebo pořádně proti sobě 2 křídla tzn. že tak se asi má .o)
ještě máme předokenní rolety - ale tomu nepřipisuju žádnou úsporu, v létě SUPER na horko, v zimě dobrý na vítr - jakmile se setmí jdou dolu
snažil jsem se zateplit jak se dalo, nicméně určiě nemáme žádný NED - přesto jsem ale se spotřebou spokojený,
zdroj primáru je plošný kolektor od gerotopu 5x 100 m smyčka, na ploše skoro 600 m 2
pumpa jede přes ekvitermu, spodek spočítaný na průtoky, hořejšek také + v každé cimře rego s hysterzí 0,2 stupně na termopohon pro danou smyčku / smyčky/ koupelny všude a wc jede všude přes ekvitermu, pár týdnů zkušebního ladění - ale to asi znáte
v podlahách je 5 cm EPS podlahového + 55 mm systémovka od Ivaru, kde je 30 mm izolace + 25 mm špunty s odrazovou vrstvou - červená varianta, všude dole dlažba, nahoře všude plovoučka - spočítané ztráty každé cimry zvlášť takže vzaný při projektu i v potaz finální povrchy
v létě chci zateplit základy + ztracené bednění co mi kouká nějakým systémem - Perimetr atd. - půjde mi to málo, mám lité základy do terénu, chci udělat tu variantu co to půjde, a pak hodit další desku vodorovně do výkopu - otázkou je v tomhle návratnost ? .o( nevim,
přítelkyně na mateřský: spotřeba komplet domu, nemám výpis kolik je topení
6581 / 574 ZA ROK
od 17. 12.2009 do 12.12.2010
tarif D56 - ceny si najděte
postavit tam 14 kw pumpu, abych měl pocit že tím něco zachráním je nesmysl, mám model viessmann 222G - kde jsou varianty výkovu v kw, i o 1,4 kw jsme se rozmešleli dát silnější - a pak jsme couvli - kvůli spotřebě kompresoru - za rok 2010 mi naběhla 1 hodina dotopu el. ale né že by nestíhalo, ale diferenci teploty pod zemí byla po dotopení podlah malá a místo aby sepla pumpa na ohřev tuv, pustila se patrona - kdo ví ví .o)
projektant na tzb - machr na pumpy, kvalitní projekt, a jet podle toho jako bible - víc ti radit nebudu - nejsem tvůj otec .o)
howk
Jen k těm základům a úvahou nad perimetrem. Beru, že Perimetr je oproti XPS daleko daleko levnější, ale přeci jen, jen nasákavý. Já dal XPS-ku.

24.02.2011, 13:09 |
Alííí | Upraveno: 2011-02-24 13:10:36
Já taky nepíšu čím víc kw tím víc teplo. Píšu jen, že budu mít čerpadlo naddimenzované, připravené i na větší mrazy. A že nechci, aby mi při mrazech šlo na plnej výkon, a žralo nesmysl elektriky.
A vrtat do země rozhodně nebudu, nerad bych za x let vrtal znovu.
Ale díky, každej názor se hodí. ;-)
MazliG - je to Žeravík nebo ještě někdo jinej?
žeravík ? - týpek co napsal tč svépomocí ? no vím o koho jde, ale co s ním - nechápu
alííí: nechápeš mě - NADDIMENZOVAT má možná smysl ZDROJ tepla - tj. vrt, kolektor - hlubší, více metrů kolektoru apodobně !!! tam musí být rezerva, aby dodávala do toho komplíku co nejteplejší solanku - jestli máš vzduch , tak tam už to neřeš vůbec - nerozumíme si - nic ve zlym. H.

24.02.2011, 13:16 |
Lucni.konik | Upraveno: 2011-02-24 13:18:34
co vím, tak taky sem tam projektuje právě.
Jo, knížku jsem četl a doporučuju si ji přečíst tak nějak všem, aby pochopili princip a jednotlivé komponenty systému vytápění tepelným čerpadlem.
to nahoře je můj domek, ne - mám z Kladna projektanta
alííí: model já budu mít 7 kw pumpu ale kolektor s 20% dimenzováním navíc - celou zimu budu mít solanku 1 stupeň - kompresor si bude pískat
ty budeš mít 14 kw pumpu ale solanku budeš mít -2 stupně, protože budeš mít navrženo od debila malej vrt, málo kolektoru apod. - COP ti půjde dolů a kompresor se bude namáhat víc než můj a topit budeme stejně - a ta tvoje pumpa sežere 3 kwh a moje 1,3
kapišto
Lucni.konik: ty mi rozumíš co tady píšu - pointu ? - píšu rychle - ale né rychleji než přemejšlym .o) doufám ...
Jo, rozumím ti naprosto v poho. Než jsem začal stavět, tak jsem taky uvažoval právě o TČ, tak jsem dost četl, studoval atd, takže vím.
ok - kucí, tak máte o čem přemýšlet - jako jsem to rok vymejšlel já .o) jednou řeknete, ten Jenda nám ale dobře poradit .o) čauves - jdu dřít
Nemá cenu dávat zbytečně výkonné čerpadlo, protože zbytečně žere energii ze sítě. Je potřeba udělat kolektor(jímací okruh) tak, aby byla co nejteplejší solanka, pak je COP vyšší a tím je ta obrovská úspora ve vytápění. Nemá cenu mít nahovno kolektor a mít zbytečně výkonné čerpadlo, protože pak při COP 1:1 to můžeš vyhodit a topit spirálou.
bingo kámo - proto jsem s nadsázkou psal: mám výkonější pumpu, bude teplejš .o) nebude, budou dražší účty od Martina Romana - potřebuje nový hole do Emirátu na golf

24.02.2011, 15:20 |
art a jéjej, téma pokračuje... Trochu jsem ho zaspal, a dost se tady pořešilo, tak aspoň doporučení k těm posledním bodům, které ještě jednou padli..
5. Tohle není moc rozdíl není, jestli 2700-2550. Jinak minimum pro rodinný dům pokud nemí určen pro individuální rekreaci má mít sv 2600mm. A pod to bych ani nešel, Na těch 2,5metru už dosáhneš na strop (nebo aspoň já ano) a to v těch větších místnostech nebude úpůsobit dobře , ale je to věc vkusu někomu se to bude líbit že místnost má nízké stropy. Ale za mě, jesli máš možnost, tak dej tu větší výšku, aspoň se těm 2,7 přiblížit, ať už třeba 2,6 nebo 2,65. Samozřejmě malé místnosti typu koupelna, WC, chodba...ty udělej se sníženým podhledem, to naopak nepůsobí dobře když mají půdorysem malé místnosti vysoký podhled (a to by těch 2,7m vysokých bylo),.takže v nich můžeš jít podhledem třeba až na 2,4 metru. (Vzniklý prostor se pak dobře využije pro vedení instalací např vzduchotechniky)
6. Též se kloním v Tvém případě k radiatoru do garáže, s tím že bude napojen nízkoteplotní systém, jen na to zavlažování. Nevím jak to nakonec budeš mít s tím vjezdem, jestli jsou tam ty šyroký vrata, jestli ano tak by jsi měl dát 2 menší radiátory po stranách. Nevím jaký máš navržený teplotná spád ale co tu padlo 30/20 °C je špatně, je nízký a moc rozdílný. Garáž zateplit (taky nevím jak to dopadlo s tím materiálem, řešil jsi to s projektantem?), koždopádně bez toho zateplení ti tam vznikne nehezký zlom (ale jestli se ti to líbí..) a opoti stěně i tepelný most. Odstraní to i tvé obavy že ti zrzne voda v garáži když tam bude jen jeden/dva radiátory na nízkoteplotním systému. (nezmrzne)
Ten radiátor v garáži bude mít i výhodu že když budeš chtít vysušit nějakej kobereček či hadr v zimě tak to na něj hodíš a nenosíš si to domu (jinak bys to sušil na zemi..)

24.02.2011, 15:51 |
Tuner#2 | Upraveno: 2011-02-24 15:52:33
MazliG: Zajímavé čtení, ještě všemu rozumět :-D ale princip věci jsem pochopil. Otázka na kterou mě ani nikdo neodpovděl je za jak dlouho se TČ zaplatí a zda v té době už nebude vyžadovat výměnu, či servisní zásah za nemálo peněz... Jinak máš mail ;-)
art: NJ 2. pokračování a určitě ne poslední...
5. Jasný asi skončím na tom kompromisu 2,6m, doma mme 2,55m a nikdy mě to nepřišlo špatně ani když se zpětně zamyslím.
6. JJ radiátor a jen zavlažovací je asi nej volba. Zateplení budu stejně řešit až pokud zbydou pníze, když nezbydou, bude barák chvíli bez fasády a dodělá se to za rok/dva to se uvidí, to zatím neřeším, ale odskok by mě až tak nevadil, alespoň by se to opticky rozbilo a dokonce jsem uvažoval o baravné variantě žlutý dům, bílá stěna ta uskočená bez zateplení garáž a přední strana garáže zas žlutá jako barák (ale to mám jen tak v hlavě a popravdě to byla jen taková myšlenka, předtím si to musím nakreslit, ale jak říkám teď to neřeším). To zateplení když by se přetáhlo třeba o 0,5 - 1m až za tu "příčku" tak by přece tam žádný tepelný most neměl vznikat, bude to prostě jako venkovní strana domu se stejnou sílou zdi jen místo zateplení bude garáž, která částečně jako zateplení přece bude fungovat ne? (nedávno byla v TV reportáž s barákem kolem dokola zatepleným skleníkem :-)
Vrata nakonec nebudou v celku 5100m (vyžaduje to průmyslový motor a jsou dražší) ale nakonec budou dvě solo vrata, jedny na pohon motorem pro denní provoz a druhý bez motoru čistě ruční a mezi bude sloupek 50cm na šířku tvárnice. Materiál jsem konzultoval s projektantem, řekl, že na to mkrne a přepočítá. Měl tam starý matroš. Nakonec půjde P2-350 Lambda (375mm), cenově tam není takový skok jak býval a garáž je myslím P4-500 (250mm)

24.02.2011, 16:18 |
Cenda | Upraveno: 2011-02-24 16:20:47
chlapi, výběr tepelnýho čerpadla je trochu složitější a jedním z hlavních kritérií je NÁVRATNOST! Když budeš mít na baráku předimenzovaných třeba 100kW, ve stejných podmínkách ti sežere stejně elektřiny (prakticky v porovnání s malým dokonce míň, dle typu a provedení kompresoru za předpokladu stejně dimenzovaných výměníků aj.) jako správně dimenzované, ale investice bude X-krát větší a návratnost v nedohlednu. V extrému díky častějšímu spínání zase zkracuješ životnost kompresoru. Ono ani tak nejde o absolutní teploty, jako jejich četnost v roce v dané lokalitě. Proto se projektují čerpadla jednak v bivaletním režimu a jednak s bodem bivalence -3 až -7°C okolí. Je kravina mít dimenzované čerpadlo až na -18°C okolní teploty, protože tu máš 5x do roka a zbytek se čerpadlo fláká, za to tě stálo 2x tolik. Ten rozdíl za dobu životnosti ani neprotopíš. Další věc jsou pak vrty a kolektory, za čas se podmínky mohou změnit (a taky se mění). Každý postupný řešení tohohle průseru samozřejmě stojí x-krát víc.
Proto konzultovat, nechat si poradit, SPOČÍTAT a především od stálic na trhu, nebo lidí, kteří to dělají už pár let.

24.02.2011, 16:39 |
art jestli "přechod" přetáhneš tou izolaci o 0,5-1m přes garáž tak jasný, pak už problém není. Ale i tak to cenové ušetřění už nebude tak zásadní když ten zbytak k vratům už neuděláš, ale uvidíš tedy pak. (fasádu můžeš rozbít i jinak než jen nezateplováním, navíc z pohledu není poznat kde budou okapy a hromosvody - taky to "rozbijí" ale zase to vše je otázka individuálního architektonického myšlení: )
A k tepelným čerpadlům : jste gauneři, země se ohřívá stovky tisíc let a vy jí takhle vycucaváte :-p
art: Jasný, navíc pak už je to i tom co se komu líbí. Občas nechápu co za nesmysl dům někdo vytvoří, nebo si nechá vytvořit, ale beru i to, že to moje se taky nebude líbit každému ;-)